본문 바로가기
제작 및 수리

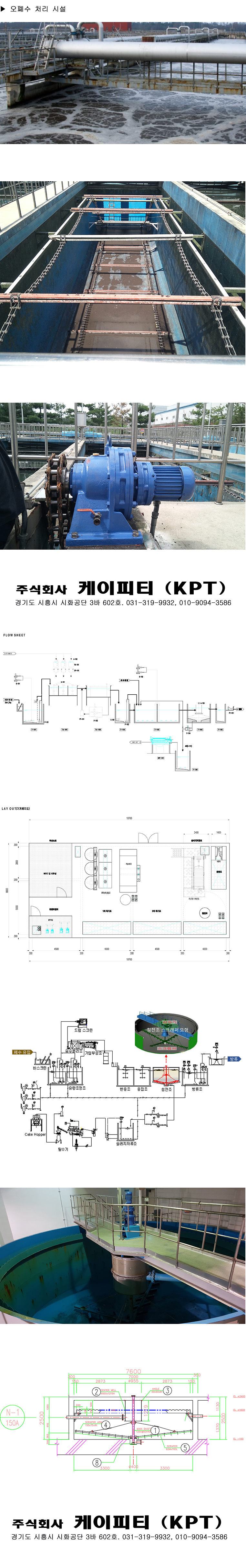
오폐수 처리 계통도, 포기조, 침전지, 응집반응조, 응집침전지, 사여과조, 방류수조, 유량조정조, pH조정조, 농축조, 스크래퍼 감속모터, 슬러지 수집기, 교반기, 싸이크로감속기, 침전조 교반..

by technical talk 2020. 5. 19.

▶ 오폐수 처리시설 계통도

 

 

 

 

 

 

 

생물 침전조 슬러지 수집기, 응집침전지 용도는 화학적 처리시설로써 응집된 슬러지를 자연 침전하여 수집 이송 하는데 있다. 응집반응조 구성은 PH조정조, A/C반응조, 응집반응조로 구성되며 화학적 처리 시설이다. 포기조는 생물학적 처리 시설로써 미생물을 배양하여 유해물질 처리를 목적으로 하고있다. 최종침전지는 생물학적 처리 시설로써 미생물을 자연 침전하여 수집 이송하는 목적에 있다. 응집반응조는 화학적 처리 시설로써 Hi-PAC, NaOH, Polymer을 투입하여 반응 응집의 효과를 낸다. 응집침전지는 화학적 처리 시설로써 응집된 슬러지를 자연 침전하여 수집이송을 목적으로 한다. 사여과조는 자갈 및 모래를 이용하여 중력 여과하여 이물질을 제거한다. 방류수조는 최종 처리수를 방류하는 수조이며 유량 및 COD, PH를 측정하여 U/V 소독 살균 후 방류한다. 폐수종말처리장 설비 제작 및 수리 전문 회사 (주)케이피티 KPT 입니다.